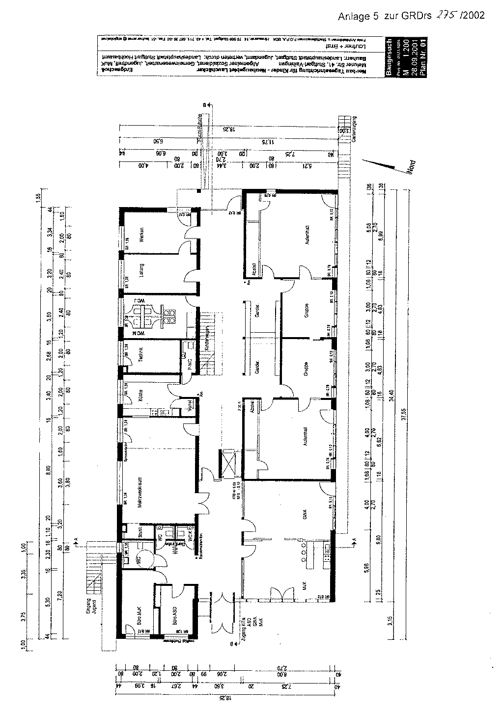
GRDrs 275/2002